This detached double-fronted new home gives you two lovely dual-aspect living spaces - an open plan kitchen/dining room and a separate living room which opens out onto the garden. With three bedrooms and two bathrooms, the Charnwood suits all aspects of family life down to the ground and it’s a great place to call home for new and growing families.

Our Customer Suite is now:
Closed -
Opens at 10am today

Opening Times:

Monday 10am - 5pm
Tuesday 10am - 5pm
Wednesday 10am - 5pm
Thursday 12pm - 7pm
Friday 10am - 5pm
Saturday 10am - 5pm
Sunday 10am - 5pm
3 bedroom detached home
Open plan kitchen/dining room
Bright dual-aspect living room with French doors leading into the garden
Bedroom one with an en suite

Plot 95 Overview

Price £525,000
Status Available
Bedrooms 3
Bathrooms 2
Parking Allocated Parking
Freehold or Leasehold Freehold
Predicted Energy Assessment Rating -
Address CM23 2YF

Further information about additional costs payable (in addition to any advertised headline price for a Charles Church new home) can be found by clicking here.

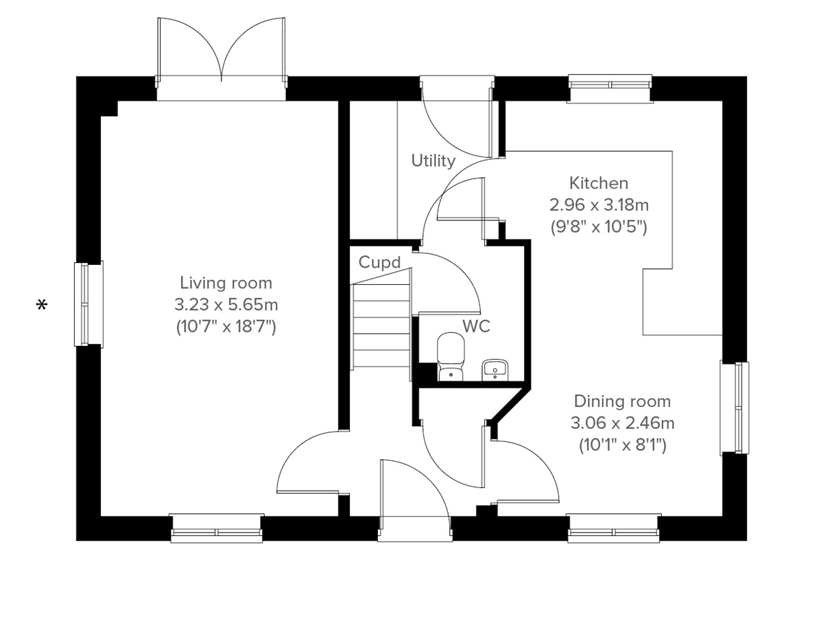
Floor plans for The Charnwood at Charles Church at Stortford Fields |

Ground Floor

+ -
Ground Floor floor plan
Room Metres Feet & Inches
Kitchen 2.96m x 3.18m 9' 8" x 10' 5"
Dining room 3.06m x 2.46m 10' 1" x 8' 1"
Living room 3.23m x 5.65m 10' 7" x 18' 7"
Disclaimer

Explore this home in 360

Experience the inside of our homes.

View this 360 tour

Charles Church at Stortford Fields Site Plan

Site plan Disclaimer

Charles Church at Stortford Fields Information

Excellent amenities

Within walking distance, you have a Tesco superstore and Bishop’s Stortford’s bustling high street that is perfect for everyday shopping and shopping spree days out.

In this vibrant yet quaint location, you can also enjoy regular local markets, fantastic dining, leisure and local healthcare facilities such as Herts & Essex Hospital. And of course, the wealth of shopping in London is a short train ride away.

Rural charm

A desirable market town full of character and charm, historic Bishop's Stortford is also close to the stunning National Trust Hatfield House and Forest.

And for sports lovers, there are various golf courses including Bishop Stortford Golf Club and Great Hadham Country Club, not to mention the local rugby club and a wealth of activities and facilities for all ages.

School days

Close to the development, you have a range of well-regarded schools, including the ‘Outstanding’ (rated by Ofsted) Northgate Primary School and Saint Mary’s Catholic High School.

Located between Cambridge and London, there are also excellent higher education opportunities not far away from home too.

Well connected

With excellent transport links, getting around couldn’t be easier. Bishop's Stortford train station is under 10 minutes away by car with fast connections to London and beyond – and by road, the M11 and A120 are easily accessible.

For enviable international travel, Stansted Airport is moments away by car or rail (under 40 minutes).

Charles Church at Stortford Fields

16 McDowell St, Bishop's Stortford, CM23 0AH

Get Directions

Similar Plots Available

Plot 79 - The Barnwood

3 bedroom semi-detached house
£520,000
Open plan kitchen/dining room
Living room with French doors
En suite to bedroom 1
View plot information

Plot 76 - The Barnwood

3 bedroom semi-detached house
£515,000
Open plan kitchen/dining room
Living room with French doors
En suite to bedroom 1
View plot information

Plot 88 - The Sherwood

3 bedroom detached house
£510,000
Open plan kitchen/dining room with French doors leading onto the garden
Generous front-aspect living room
Bedroom 1 with an en suite
View plot information