This is a classic double-fronted, three-storey town house. The Kingsand has kerb appeal as well as an excellent and well-planned layout inside. Particularly strong features are the large L-shaped open-plan kitchen/dining/living room, which has bi-fold doors to the garden, and the balance of four bedrooms and four bathrooms. It’s especially useful that both the bedrooms on the second floor are en suite, while bedroom one also enjoys a dressing room.

Our Customer Suite is now:
Closed -
Opens at 10am on Friday

Opening Times:

Monday 10am - 5pm
Tuesday 10am - 5pm
Wednesday Closed
Thursday Closed
Friday 10am - 5pm
Saturday 10am - 5pm
Sunday 10am - 5pm

 

What 3 words: crowns.dreams.agreement

4 bedroom + study detached home
Open plan kitchen/dining room with bi-fold doors to the garden
Bedroom 1 with en suite and walk in wardrobe
Separate study

Plot 1215 Overview

Price £620,000
Status Available
Bedrooms 4
Bathrooms 4
Parking Allocated Parking
Freehold or Leasehold Freehold
Predicted Energy Assessment Rating -
Address -

Further information about additional costs payable (in addition to any advertised headline price for a Charles Church new home) can be found by clicking here.

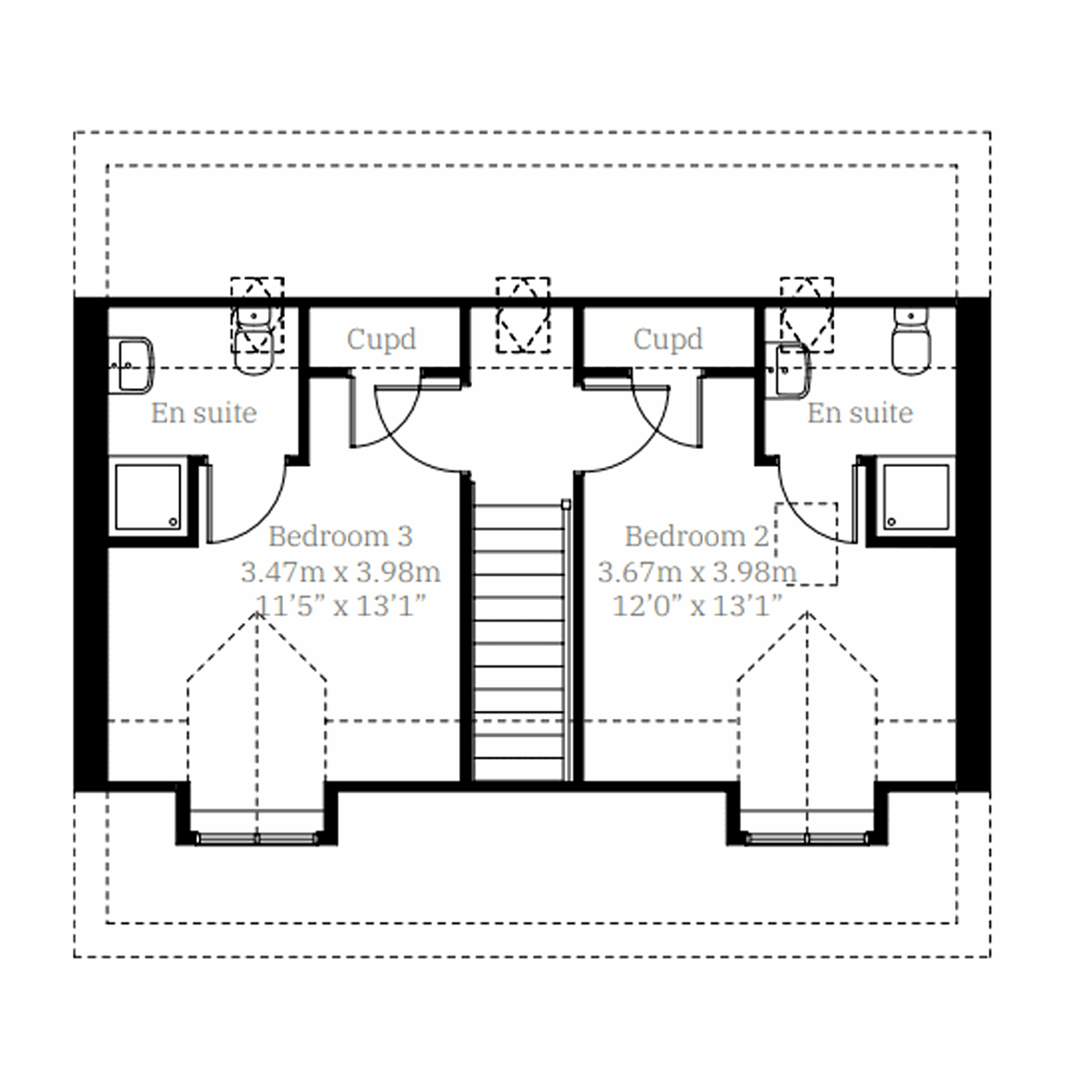
Floor plans for The Kingsand at St Peters Place |

Ground Floor

+ -
Ground Floor floor plan
Room Metres Feet & Inches
Kitchen/Dining/Family room 6.2m x 7.44m 20' 4" x 24' 5"
Living room 3.42m x 4.05m 11' 3" x 13' 3"
Disclaimer

Explore this home in 360

Experience the inside of our homes.

View this 360 tour

St Peters Place Site Plan

Site plan Disclaimer

St Peters Place Information

Everything you need on your doorstep

You’ll have access to a brand-new local centre with space for shops and services, plus excellent schools for children of all ages – including a new primary school and enhanced secondary provision nearby. The city centre is just a short drive away, providing you with supermarkets, independent shops, restaurants, culture and entertainment. Also, local services and leisure options are easily reached on foot or by bike, thanks to new connecting footpaths and cycleways.

Explore the outdoors in Wiltshire

Bordered by open green space and offering play parks, sports pitches and a multi-use games area, St Peters Place gives you plenty of reasons to get outdoors.

The wider Wiltshire landscape is perfect for long walks, bike rides and family adventures, with countryside views and heritage landmarks all within easy reach. Salisbury’s rivers, gardens and historic streets offer charm and character – and it’s all just minutes from your new front door.

St Peters Place

24 Adlam Way, Salisbury, SP2 9FW

Get Directions

Similar Plots Available

Plot 1206 - The Bamburgh

4 bedroom detached house
£525,000
Triple aspect kitchen/dining/family room with bi-fold doors to the garden
Quartz worksurfaces to kitchen & utility
Bedroom 1 with large en suite
View plot information

Plot 1214 - The Cullen

4 bedroom + study detached house
£500,000
Integral garage
Handy utility and downstairs WC
Separate study
View plot information

Plot 1172 - The Langford

3 bedroom semi-detached house
£365,000
Bedroom 1 includes an en suite
Open plan kitchen/diner with French doors into garden
Utility room
View plot information